Pronájem bytu 1+kk, Brno, Hlinky, 44 m2 (ID: 2569006)

Hlinky, Staré Brno

16 000 Kč /za měsíc Získejte výhodnou HYPOTÉKU

(+ servisní poplatek 1350 Kč/měsíc)

Doporučené firmy v Brně

Informace k bytu

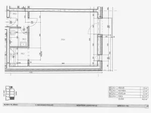
Z pozice majitele objektu nabízíme k pronájmu byt č. 32 o výměře 44,6 m² a dispozici 1+kk s 1,4 m² balkonem do vnitrobloku, nacházející se ve 1. nadzemním podlaží moderního polyfunkčního domu se dvěma výtahy. Dům je situován na prestižní adrese Hlinky 995/70, Brno, přímo u zastávek MHD „Výstaviště – hlavní vstup“ (tramvaj i trolejbus).

Byt bude dostupný k pronájmu od 1.4.2026.

Díky výborné poloze je zajištěna rychlá a pohodlná dostupnost do centra města, stejně jako napojení na hlavní dopravní tahy.

Součástí objektu je:
• prádelna s 2 pračkami a sušičkou k dispozici nájemcům
• soukromá zahrada ve vnitrobloku o velikosti cca 450 m²

Dispozice bytu:
→ Pokoj (35,3 m²) - světlý, orientovaný do zahrady
→ Kuchyňka (3,3 m²) - linka s dvouploténkovým vařičem a lednicí
→ Koupelna (3,2 m²) - se sprchovým koutem, umyvadlem a toaletou
→ Předsíň (2,8 m²) - vybavená šatní skříní
→ Balkon (1,4 m²)

Cena pronájmu:
• Nájemné: 16.000,- Kč/měsíc
• Servisní poplatek: 1.350,- Kč/měsíc
• Zálohy na služby: 2.500,- Kč/měsíc
• Kauce ("jistota"): 35.000,- Kč

K dispozici: IHNED po podpisu smlouvy a složení jistoty

Parkování:
Možnost pronájmu garážového stání v 1.NP domu za 3.000,- Kč/měsíc. V okolí domu parkovací zóna C.

Pro více informací nás neváhejte kontaktovat (ideálně e-mailem, ve kterém uvedete základní informace o Vás). Rádi se s Vámi následně domluvíme na osobní prohlídce.

Parametry bytu

Cena
16 000 Kč /za měsíc
Poznámka k ceně
+ servisní poplatek 1350 Kč/měsíc
Náklady na bydlení
2500
Aktualizováno
10. 3. 2026
Adresa
Hlinky, Staré Brno
Stavba
Smíšená
Stav objektu
Novostavba
Patro
1.
Vybaveno
Částečně
Lokalita objektu
Centrum obce
Vlastnictví
Osobní
Užitná plocha
44 m2
Podlahová plocha
46 m2
Třída energetické náročnosti
B - Velmi úsporná
Telekomunikace
Internet
Doprava
MHD
Balkon
Garáž
Výtah
Bezbarierový přístup

Kontaktovat makléře

Máte zájem o tento byt?

Tímto, v souladu s nařízením Evropského parlamentu a Rady (EU) 2016/679, v platném znění, prohlašuji, že mi je alespoň 16 let a uděluji tak svůj souhlas se zpracováním zadaných údajů (jméno, telefon, e-mail, ip adresa) společnosti B3 Technology, s.r.o., IČ: 07330600, se sídlem Novostavby 126/23, 435 11 Lom (správce dat), za účelem předání dotazu z tohoto formuláře Vámi vybranému inzerentovi a zpětného kontaktování mé osoby. Osobní údaje bude správce zpracovávat manuálně i automaticky přímo prostřednictvím svých zaměstnanců. Informace předané tímto formulářem budou uloženy v databázi správce maximálně po dobu 10 let. Odvolání souhlasu s uložením a zpracováním poskytnutých dat lze e-mailem na info@bydlisnami.cz. V případě podezření na neoprávněné použití Vámi poskytnutých údajů máte právo předat podnět k šetření Úřadu pro ochranu osobních údajů. Více informací
Chystáte se prodat nemovitost?
Pomůžeme Vám!

Inzerát si prohlédlo 0 lidí

Prodejce

Ivana Kostúrová

Ivana Kostúrová

Hlídací pes

Chcete dostávat emailem podobné nabídky pronájmu bytů 1+kk v Brně?

Podobné nemovitosti