Pronájem obchodního prostoru, Praha, Siemensova, 206 m2

Siemensova, Praha 13

17 € /za metr čtvereční / měsíc Získejte výhodnou HYPOTÉKU

(+ služby 150 Kč / měs + DPH)

Doporučené firmy v Praze

Stěhovací služby

Výkup a prodej starého nábytku

Informace k nemovitosti

Neplatíte provizi!

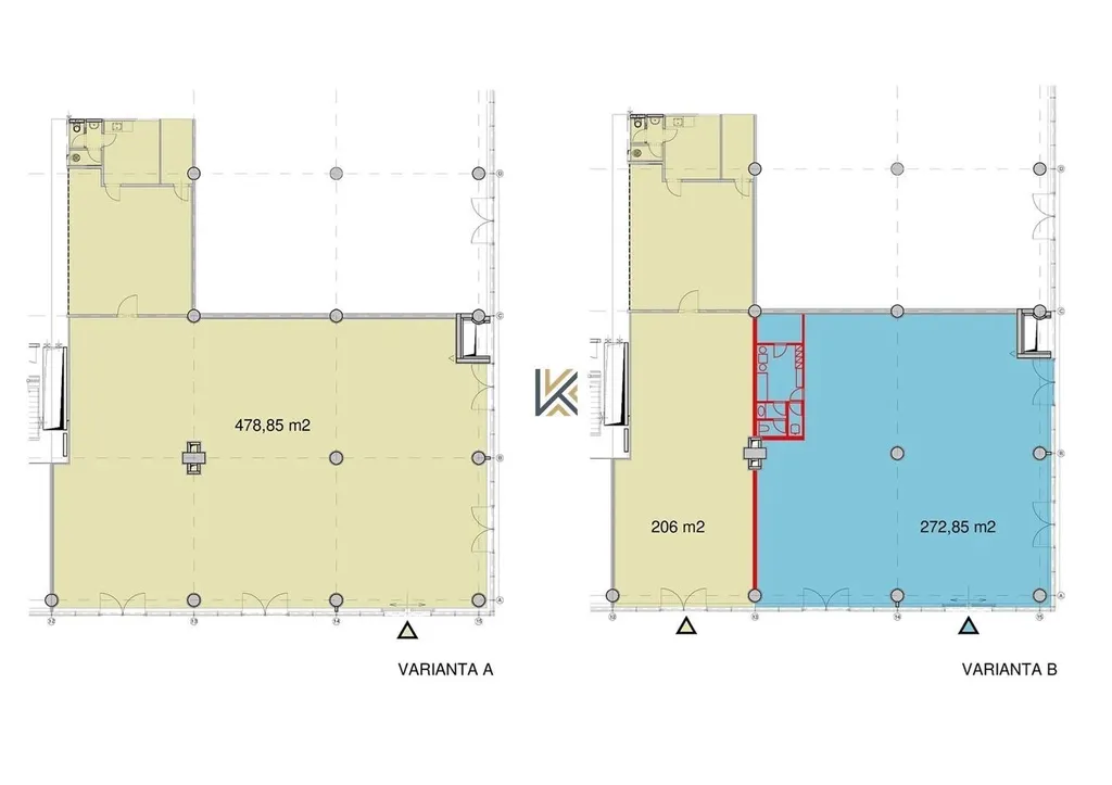
Nabízíme k pronájmu obchodní prostor o velikosti 206 m2, z celkové plochy obchodu 478,85m2, na rohu budovy Siemensova 4, Praha 5. Vzdálenost od metra 1 minutu, jednotka viditelná z hlavní ulice. Vedle je Puzzle Salads a Kolkovna. Možnost zvětšit o 272,85m2. Nájemce musí být plátcem DPH.

Administrativní budova Patria West Offices (budova City West B1) nabízí k pronájmu moderní kancelářské prostory kategorie AA v příjemné lokalitě západní části Prahy.

Zdarma pro Vás připravíme nabídku kanceláří a obchodních prostor z více jak 300 budov po celé Praze. Těšíme se na kontaktování.

Parametry nemovitosti

Cena
17 € /za metr čtvereční / měsíc
Poznámka k ceně
+ služby 150 Kč / měs + DPH
Aktualizováno
18. 3. 2026
Adresa
Siemensova, Praha 13
ID
976535
Stavba
Smíšená
Stav objektu
Novostavba
Patro
1.
Typ objektu
Přízemní
Vlastnictví
Osobní
Užitná plocha
206 m2
Plocha nebytových prostor
206 m2
Třída energetické náročnosti
G - Mimořádně nehospodárná
Topení
Jiné
Garáž

Kontaktovat makléře

Máte zájem o tuto nemovistost?

Tímto, v souladu s nařízením Evropského parlamentu a Rady (EU) 2016/679, v platném znění, prohlašuji, že mi je alespoň 16 let a uděluji tak svůj souhlas se zpracováním zadaných údajů (jméno, telefon, e-mail, ip adresa) společnosti B3 Technology, s.r.o., IČ: 07330600, se sídlem Novostavby 126/23, 435 11 Lom (správce dat), za účelem předání dotazu z tohoto formuláře Vámi vybranému inzerentovi a zpětného kontaktování mé osoby. Osobní údaje bude správce zpracovávat manuálně i automaticky přímo prostřednictvím svých zaměstnanců. Informace předané tímto formulářem budou uloženy v databázi správce maximálně po dobu 10 let. Odvolání souhlasu s uložením a zpracováním poskytnutých dat lze e-mailem na info@bydlisnami.cz. V případě podezření na neoprávněné použití Vámi poskytnutých údajů máte právo předat podnět k šetření Úřadu pro ochranu osobních údajů. Více informací
Chystáte se prodat nemovitost?
Pomůžeme Vám!

Inzerát si prohlédlo 0 lidí

Prodejce

Elizabeth Tien

Elizabeth Tien

Hlídací pes

Chcete dostávat emailem podobné nabídky pronájmu obchodních prostor v Praze?

Podobné nemovitosti